Industrial Area, Otjiwarongo: 2 Adjacent properties sold together

N$7,350,000
Property Details

Two erven, that operate as one.

Registered in a private name

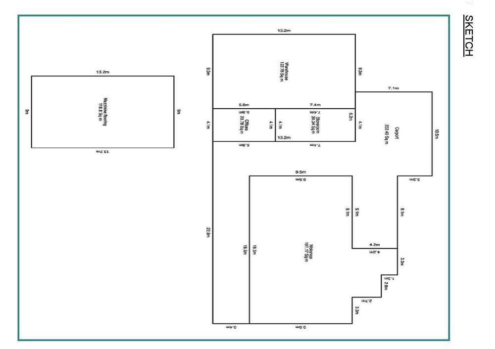
Various infrastructure:

* Erf 1:

*** Erf size 1965m2

*** Buildings Lab 77m2, Workshops 178m2, Carport 59m2, Mezzanine Flooring 41m2, Ablution 3m2, Verandas 30m2: Total buildings/structures 388m2

* Erf 2:

*** Erf size 059m2

* Buildings: Office 24m2, Workshops 197m2, Warehouse 123m2, Carport 232m2, Store room 30m2, Mezzanine floor 119m2: Total buildings/structures 725m2

TOTAL BUILDING/INFRASTRUCTURE 1113m

TOTAL ERF SIZE: 4024m2

Price: N$7 350 000 (VAT EXCLUSIVE)

Property Features
Property Type
Industrial
Land Size
4,024m²
Location
Make an enquiry
Interested in this property? Please fill in your details below, and we will contact you as soon as possible.
By clicking on "submit" you agree to our privacy policy.
Property Alerts
Receive email alerts for properties matching your criteria.