Otjiwarongo: Property with 3 x Flats is for sale

N$3,200,000
Property Details

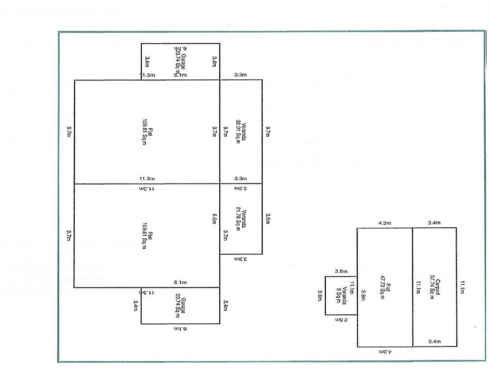
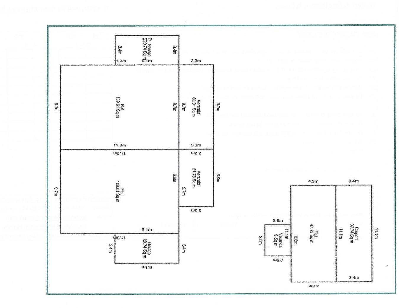
Large Property with 3 flats, Configured as (see site layout amongst images)

* 2 x 2 Bedroom flats 220m2

* 1 x 1 Bedroom flat 48m2

* Garage 42m2

* Carport 38m2

* Verandas 63m2"

TOTAL:

* 5 Bedrooms

* 3 Bathrooms

* 2 Garages

* 1 Carport

2 Bedroom flats, each with:

* Reception

* Kitchen and scullery

* Living area

* 2 Bedrooms

* 1 Bathroom, with bath, shower, basin, toilet

* Single Garage

* Veranda

1 Bedroom flat:

* Kitchen

* Bedroom

* Bathroom with shower, basin, toilet

* Carport

* Veranda

General:

* Lots of space to add more structures to the property

* Erf size: 2565m2

* Flats total: 236m2, Garages 42m2, Carport 38m2, Verandas 63m2

Price: N$3 200 000

Property Features
Property Type
House
Bedrooms
5
Bathrooms
3
Garages
2
Covered Parking
1
Floor Size
310m²
Land Size
2,565m²
Living Area
2
Additional Information
Bedroom
2 x 2 bedroom flats 1 x 1 bedroom flat
Bathroom
Bathrooms of two bedroom flats have bath, basin, shower, toilet Bathroom of one bedroom flat has shower, basin, toilet
Location
Make an enquiry
Interested in this property? Please fill in your details below, and we will contact you as soon as possible.
By clicking on "submit" you agree to our privacy policy.
Property Alerts
Receive email alerts for properties matching your criteria.
You may also be interested in these properties
N$ 3,700,000
House for sale in Otjiwarongo Central
Reduced
Otjiwarongo: Magnificent 4 Bedr Double Storey Villa For Sale
Host guests or relax in grand open-plan living with elevated veranda overlooking Paresis mountains and bushveld, well-located near main roads, garden, granite kitchen; four bedrooms, four baths, triple garage.
4
4
3
928m²
1,576m²
N$ 2,730,000
House for sale in Otjiwarongo Central
Reduced
Ext 1, Otjiwarongo: Stunning 4 Bedroom Home Is For Sale
Entertainer’s dream in a private suburban setting with indoor-outdoor flow to a lapa with built-in braai, koi pond and irrigation — four beds, three baths, double garage.
4
3
2
1,350m²
N$ 3,465,000
House for sale in Otjiwarongo Central
Otjiwarongo.: Beautiful And Neat 5 Bedroom Home On The Outskirts Of Town
Family-focused entertainer in a quiet, family-friendly neighborhood with private garden and veranda, huge open-plan living, dedicated braai room, six bedrooms and secure palisade fencing.
6
3
1,483m²