Industial Area, Swakopmund: BRAND NEW WAREHOUSES selling off plan

N$2,965,000
Property Details

Exciting New Warehouse Development in Swakopmund Industrial Area!

A total of 16 warehouse units are available in various sizes and price ranges

UNITS WILL BE CC REGISTERED, thus no VAT or Transfer Duties relevant

Construction will be carried out in phases, ensuring each purchased unit is completed and delivered as a fully finished warehouse. Buyers can invest with confidence, knowing their warehouse will be completed as promised.

The first 5 sectional title units are now available at a special early-bird price. CASH BUYERS who pay upfront can negotiate a further discount

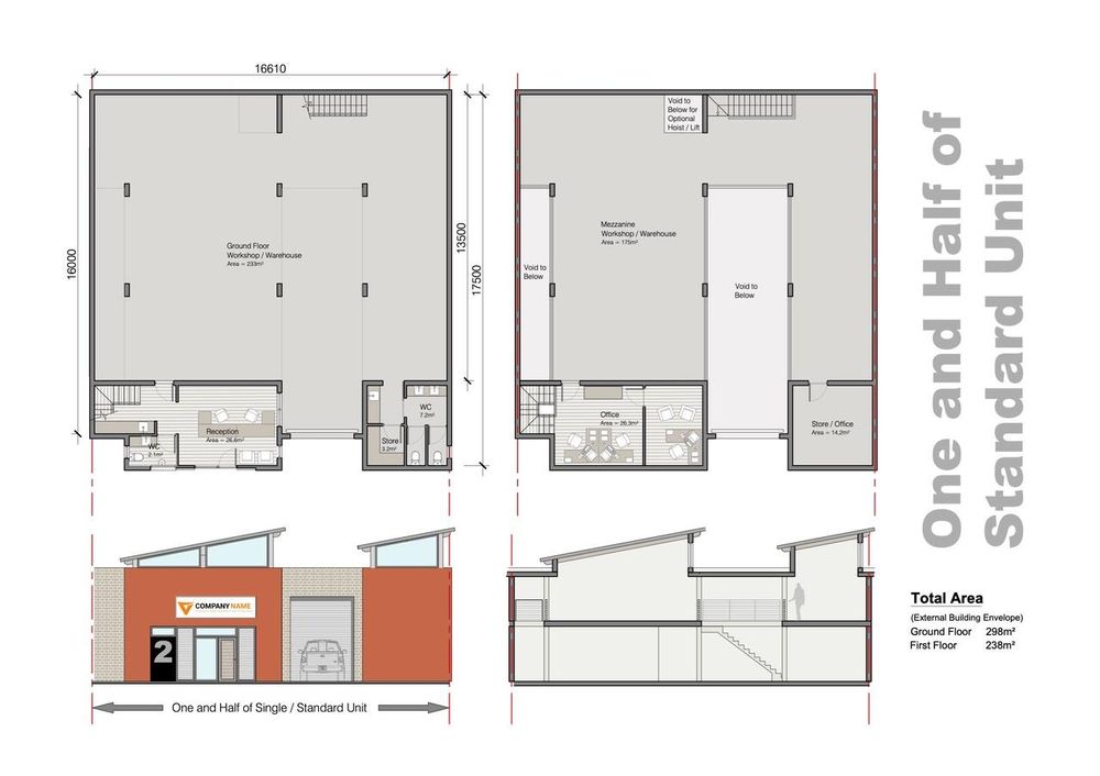
Each of these units will feature a practical and modern layout designed for both business operations and storage needs:

* Ground Floor: Reception area, WC, kitchenette, workers’ ablutions, and a spacious warehouse section.

* Mezzanine/Firs Floor: Two offices and a generous mezzanine storage area.

* 3 Exclusive Parking Bays in front of each unit (more parking at larger units)

Warehouse Unit Prices for first phase:

1- Single front unit, 333 m2, N$3 050 000

2- Single unit, 333 m2, N$2,965,000

3- Single unit, 333 m2, N$2,965,000

4- Single unit, 333 m2, N$2,965,000

5- Single unit, 333 m2, N$2,965,000

Other units can also be secured, but development will be in two or three later phases. Call us for prices

To ensure transparency and peace of mind, the warehouse development offers a clear phase payment structure tailored for buyers: 10% upon signing of the purchase agreement, 30% once the building contractor commences on site, 30% at first-floor height, a further 25% at roof height, and the final 5% on completion. All buyer funds are securely managed and administered through the Trust Account of the Transferring Attorneys in Swakopmund, guaranteeing professional oversight and safeguarding your investment throughout the building process.

Call us to secure your unit!

Property Features
Property Type
Industrial
Floor Size
333m²
Location
Make an enquiry
Interested in this property? Please fill in your details below, and we will contact you as soon as possible.
By clicking on "submit" you agree to our privacy policy.
Property Alerts
Receive email alerts for properties matching your criteria.