Afrodite Beach, Walvis Bay: Vacant plot with Approved Plan is for Sale

N$735,000
Property Details

Property is situated in Yanni Savva Drive, thus will offer:

* View of the Dunes on the eastern side of the home

* Potential sea views over the roofs of homes to the west

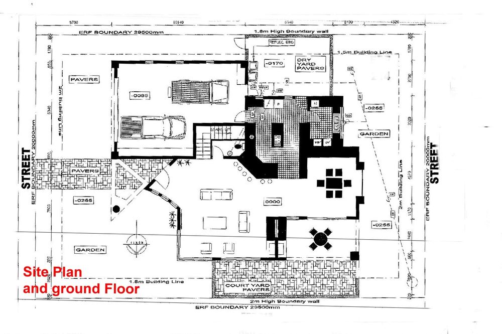
Plan that is approved, is for a large double storey home with a rooftop entertainment patio. See 3 D graphics and floor plan attached

Purchaser of the plot will also be the owner of the approved plans.

The plans provides for a home:

* Ground floor 197m2 and Garage 67m2

* First floor 119m2 and 62m2 balconies

* Rooftop Deck: 5m2

* TOTAL UNDER ROOF: 383m2

General:

* Erf is registered in a private name

* Erf size: 590m2

Price: N$735 000.

Property Features
Property Type
Vacant Land Residential
Land Size
590m²
Location
Make an enquiry
Interested in this property? Please fill in your details below, and we will contact you as soon as possible.
By clicking on "submit" you agree to our privacy policy.
Property Alerts
Receive email alerts for properties matching your criteria.